...
Skip to content Skip to footer

Atrakcyjna Stodółka AS132G to nowoczesny parterowy dom w stylu stodoły z jednostanowiskowym garażem, idealny dla 3-4‑osobowej rodziny ceniącej prostą formę i funkcjonalny układ wnętrza. Projekt łączy przestronną strefę dzienną z dużymi przeszkleniami, otwartą kuchnią i wyjściem na ogród z komfortową częścią prywatną z sypialniami oraz gabinetem do pracy w domu. Bryła z dwuspadowym, bezokapowym dachem oraz prefabrykowana technologia keramzytobetonowa zapewniają energooszczędność, bardzo dobrą izolację termiczną i szybki czas realizacji inwestycji. To gotowy projekt dla osób szukających nowoczesnego domu o powierzchni całkowitej 132 m², który łatwo ogrzać, wykończyć i dopasować do współczesnego stylu życia.

projekt

as132g

Powierzchnia domu

108,42 m²

KOSZT STANU DEWELOPERSKIEGO

od 654 900 zł*

Powierzchnia garażu

23,40 m²

*Cena nie uwzględnia projektu z adaptacją i płyty fundamentowej

Czas wykonania: maksymalnie 120 dni roboczych od technologicznie gotowej płyty fundamentowej.

DODATKOWE ZAKRESY PRAC

DOKUMENTACJA

12 000 zł

Zakres robót obejmuje

  • Wykonanie adaptacji projektu gotowego
  • Zakup projektu atrakcyjna stodoła AS132G

Zakres robót nie obejmuje

  • mapy do celów projektowych
  • badań geologicznych
  • uzyskania WZ, warunków, projektów przyłączy itp.

TRÓJKĄTNE PRZESZKLENIE

28 500 zł

OTWARTA PRZESTRZEŃ NAD SALONEM

35 000 zł

Budujemy od 2011 roku i zrealizowaliśmy już 100+ projektów.

Do każdego zamówienia podchodzimy indywidualnie, oferujemy projekty przemyślane w dobrej cenie. Proponujemy technologię z prefabrykatów keramzytobetonowych, gdyż jesteśmy zwolennikiem trwałych rozwiązań.

Rozwijamy się w celu zapewniania jak najwyższych standardów naszym klientom. Zajmujemy się budową domów w stanie deweloperskim.

Budujemy na terenie całego kraju, a zachowanie najwyższych standardów pozwala nam utrzymać powtarzalną jakość.

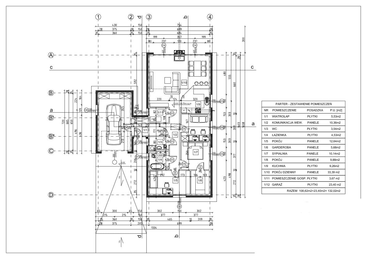
Rzut parteru

Wizualizacja domu zewnątrz

Dlaczego warto

Powierzchnia 132 m²

Energooszczędne
budownictwo

Nowoczesna
technologia budowy

Indywidualne
podejście

Zakres robót

1. PŁYTA FUNDAMENTOWA

Płyta fundamentowa wykonywana jest jako monolityczna konstrukcja żelbetowa, zaprojektowana indywidualnie pod warunki gruntowe oraz konstrukcję budynku z prefabrykatów keramzytobetonowych. Technologia ta zapewnia wysoką nośność, równomierne przenoszenie obciążeń oraz bardzo dobre parametry cieplne i użytkowe.

ZAKRES I TECHNOLOGIA ROBÓT

  1. Przygotowanie podłoża gruntowego

    Prace ziemne prowadzone są pod nadzorem technicznym. W przypadku konieczności wymiany gruntu wykonywana jest wymiana do głębokości maks. 40 cm, wraz z warstwowym zasypem i mechanicznym zagęszczeniem materiału, zapewniającym odpowiednią nośność pod płytę fundamentową.
  2. Izolacja termiczna obwodowa

    Wykonywana jest obwodowa izolacja cieplna płyty fundamentowej z płyt styropianowych XPS, charakteryzujących się wysoką odpornością na wilgoć, ściskanie oraz działanie czynników gruntowych. Izolacja ogranicza straty ciepła i eliminuje mostki termiczne w strefie fundamentu.
  3. Podziemna część kanalizacji sanitarnej

    Przed betonowaniem płyty wykonywana jest instalacja kanalizacyjna z rur Ø160 oraz Ø110, prowadzona w obrębie płyty fundamentowej i wyprowadzona poza jej obrys, przygotowana do dalszego podłączenia instalacji wewnętrznych.
  4. Przepusty technologiczne

    W płycie fundamentowej wykonywane są przepusty technologiczne:
    – pod instalację wodną,
    -pod instalację elektryczną.

    Przepusty umożliwiają bezpieczne i szczelne przeprowadzenie mediów do budynku.
  5. Zbrojenie płyty fundamentowej

    Zbrojenie wykonywane jest zgodnie z projektem zamiennym, z zastosowaniem stali zbrojeniowej o wymaganych średnicach i klasach. Układ zbrojenia zapewnia odpowiednią sztywność, nośność oraz trwałość konstrukcji.
  6. Betonowanie płyty fundamentowej

    Płyta fundamentowa betonowana jest betonem konstrukcyjnym klasy B25, w sposób ciągły, zapewniający jednorodność konstrukcji. Beton jest zagęszczany mechanicznie.

ZAKRES ROBÓT NIEOBEJMUJĄCY

  • wynajmu koparko-ładowarki oraz zakupu piasku,
  • wykonania projektów przyłączy oraz samych przyłączy do budynku,
  • wykonania schodów zewnętrznych,
  • wykonania podziemnej instalacji odprowadzającej wodę deszczową z rynien,
  • adaptacji projektu budowlanego.

2. ŚCIANY NOŚNE I DZIAŁOWE

Ściany nośne parteru oraz ściany działowe wykonywane są w technologii prefabrykatów z keramzytobetonu – nowoczesnego materiału konstrukcyjnego, który łączy wysoką wytrzymałość betonu z bardzo dobrymi właściwościami użytkowymi. Rozwiązanie to zapewnia szybkie tempo budowy oraz wysoką jakość wykonania.

ZALETY TECHNOLOGII KERAMZYTOBETONOWEJ

  • wysoka trwałość i nośność – keramzytobeton jest odporny na ściskanie, wilgoć oraz czynniki atmosferyczne,
  • bardzo dobra izolacyjność cieplna w porównaniu do tradycyjnego betonu, co ogranicza straty ciepła budynku,
  • dobra izolacyjność akustyczna – masywne prefabrykaty skutecznie tłumią dźwięki,
  • odporność ogniowa – materiał niepalny, zwiększający bezpieczeństwo użytkowania domu,
  • stabilność wymiarowa – brak skurczu i pęknięć typowych dla murów wznoszonych tradycyjnie,
  • wysoka dokładność wykonania prefabrykatów, co ułatwia dalsze prace wykończeniowe,
  • szybki montaż – skrócenie czasu budowy i ograniczenie prac mokrych na placu budowy.

ZAKRES ROBÓT

  • wykonanie izolacji przeciwwilgociowej na płycie fundamentowej z papy lub folii,
  • montaż prefabrykowanych ścian keramzytobetonowych nośnych i działowych zgodnie z projektem,
  • wykonanie zbrojenia i betonowania połączeń pomiędzy elementami ściennymi, zapewniających sztywność i trwałość konstrukcji.

3. KONSTRUKCJA DACHU

Konstrukcja dachu wraz ze stropem wykonywana jest z drewna konstrukcyjnego suszonego komorowo o wilgotności ok. 18%, w nowoczesnej technologii MITEK. Rozwiązanie to zapewnia wysoką precyzję wykonania, trwałość konstrukcji oraz szybki montaż na budowie.

ZALETY TECHNOLOGII MITEK I DREWNA C24

  • wysoka wytrzymałość i stabilność konstrukcji dzięki zastosowaniu drewna klasy C24,
  • suszenie komorowe ograniczające pracę drewna, pęknięcia i odkształcenia,
  • prefabrykacja elementów zapewniająca dużą dokładność wymiarową,
  • szybki montaż konstrukcji dachu i stropu, skracający czas realizacji,
  • możliwość uzyskania dużych rozpiętości bez podpór, co daje większą swobodę aranżacji wnętrz,
  • trwałe połączenia elementów za pomocą płytek kolczastych MITEK.

ZAKRES ROBÓT

  • wykonanie konstrukcji drewnianej dachu i stropu z drewna konstrukcyjnego klasy C24,
  • montaż prefabrykowanych elementów konstrukcyjnych w technologii MITEK.

4. POKRYCIE DACHU

Dach wykonywany jest jako kompletne pokrycie dachowe z blachodachówki lub dachówki betonowej płaskiej z podstawowej palety kolorów producenta. Zastosowane materiały zapewniają trwałość, estetyczny wygląd oraz skuteczną ochronę budynku przed warunkami atmosferycznymi.

Na etapie wykonania dachu montowane są kominki wentylacyjne i odpowietrzające, wykonywane są wszystkie niezbędne obróbki blacharskie, a całość zostaje wyposażona w system rynnowy odprowadzający wodę opadową.

ZALETY ZASTOSOWANYCH ROZWIĄZAŃ

  • trwałe i odporne na warunki atmosferyczne pokrycie dachowe,
  • estetyczny, nowoczesny wygląd dachu,
  • skuteczne odprowadzenie wody opadowej dzięki systemowi rynnowemu,
  • kompletne zabezpieczenie krawędzi i newralgicznych miejsc dachu poprzez obróbki blacharskie.

ZAKRES ROBÓT

  • wykonanie pokrycia dachu wybranym materiałem (blachodachówka lub dachówka betonowa płaska),
  • dostarczenie i montaż kominka dachowego odpowietrzającego pion kanalizacyjny,
  • wykonanie obróbek blacharskich (m.in. pas nadrynnowy, wiatrownice, deski okapowe i czołowe),
  • wykonanie orynnowania prostokątnego wraz z montażem pionowych rur spustowych w wybranym, podstawowym kolorze.

5. ELEWACJA

Elewacja budynku wykonywana jest w technologii ETICS, zapewniającej bardzo dobre parametry termoizolacyjne, trwałość oraz estetyczny wygląd budynku. Zastosowanie grubego ocieplenia oraz tynku silikonowego skutecznie chroni budynek przed utratą ciepła, wilgocią i zabrudzeniami.

ZALETY ZASTOSOWANYCH ROZWIĄZAŃ

  • ocieplenie styropianem o grubości 20 cm, zapewniające niskie straty ciepła i wysoki komfort użytkowania,
  • tynk silikonowy o wysokiej odporności na zabrudzenia i działanie warunków atmosferycznych,
  • skuteczna ochrona naroży, otworów okiennych i drzwiowych,
  • zabezpieczenie elewacji przed zawilgoceniem dzięki listwom przyokiennym.

ZAKRES ROBÓT OBEJMUJE

  • wykonanie ocieplenia elewacji styropianem o grubości 20 cm,
  • ułożenie z zatopieniem siatki zbrojącej,
  • zabezpieczenie naroży budynku oraz naroży wokół otworów okiennych i drzwiowych listwami narożnikowymi z siatką,
  • montaż listew przyokiennych zapobiegających wnikaniu wody pod tynk,
  • wykonanie tynku silikonowego o uziarnieniu 1,5 mm w jednym kolorze z podstawowej palety producenta,

ZAKRES ROBÓT NIE OBEJMUJE

  • wykonania zdobień elewacyjnych (elementy drewniane, dekoracyjne lub inne).

6. INSTALACJA ELEKTRYCZNA

W ramach stanu deweloperskiego wykonywana jest kompletna instalacja elektryczna wewnątrz budynku, zapewniająca bezpieczne i wygodne użytkowanie domu zgodnie z obowiązującymi normami. Instalacja wykonana jest przy użyciu wysokiej jakości materiałów i osprzętu elektrycznego.

ZAKRES ROBÓT OBEJMUJE

  • wykonanie instalacji elektrycznej 230V wewnątrz budynku (do 50 punktów),
  • wykonanie instalacji oświetlenia wewnętrznego (do 15 punktów),
  • wykonanie gniazda trójfazowego do kuchni pod płytę indukcyjną (1 punkt),
  • dostarczenie i montaż skrzynki bezpiecznikowej z rozdzielnią.

ZAKRES ROBÓT NIE OBEJMUJE

  • wykonania przyłączenia energii do budynku (licznika i przyłącza od sieci energetycznej).

ZALETY ROZWIĄZANIA

  • bezpieczna i zgodna z normami instalacja elektryczna gotowa do dalszego podłączenia urządzeń,
  • przygotowanie pod nowoczesne urządzenia kuchenne (płyta indukcyjna),
  • estetyczne i uporządkowane prowadzenie przewodów wewnątrz ścian i sufitów.

7. INSTALACJA WOD-KAN I CO

W ramach stanu deweloperski wykonywana jest kompletna instalacja wodno-kanalizacyjna wraz z ogrzewaniem podłogowym, zapewniająca komfort użytkowania i energooszczędność budynku. Prace obejmują także wykonanie warstw izolacyjnych oraz posadzkowych, przygotowujących budynek pod wykończenie podłóg.

ZAKRES ROBÓT OBEJMUJE

  • wykonanie instalacji kanalizacyjnej rurami PCV,
  • wykonanie instalacji wody ciepłej i zimnej: maksymalnie 5 punktów wody ciepłej, 7 punktów wody zimnej, 9 punktów kanalizacyjnych,
  • wykonanie cyrkulacji ciepłej wody użytkowej,
  • wykonanie 1 punktu wody ogrodowej,
  • wykonanie instalacji ogrzewania podłogowego w całym budynku,
  • wykonanie warstwy izolacyjnej pod posadzkę o łącznej grubości 150 mm (EPS 100 mm + EPS 50 mm),
  • wykonanie warstwy posadzkowej metodą półsuchą o grubości 60 mm,
  • zatarcie mechaniczne posadzki, zapewniające gładką i równą powierzchnię,
  • przeprowadzenie próby szczelności instalacji.

ZAKRES ROBÓT NIE OBEJMUJE

  • wykonania przyłącza wody do budynku,
  • wykonania białego montażu armatury i urządzeń sanitarnych.

ZALETY ZASTOSOWANEGO ROZWIĄZANIA

  • trwała i szczelna instalacja wodno-kanalizacyjna, przygotowana do podłączenia urządzeń,
  • komfortowe i energooszczędne ogrzewanie podłogowe,
  • skuteczna izolacja cieplna podłóg dzięki warstwie EPS 150 mm,
  • stabilna i gładka posadzka półsucha, gotowa pod dalsze wykończenie podłóg,
  • wysoka precyzja wykonania i przygotowanie budynku do szybkiego etapu wykończenia.

8. SUFITY PODWIESZANE

Sufity podwieszane w parterze wykonywane są w technologii sucho-montażowej, zapewniającej estetyczne, gładkie wykończenie oraz dodatkową izolację akustyczną i termiczną. Wysokość „na gotowo” wynosi minimum 2,65 m, co daje komfortową przestrzeń użytkową.

ZAKRES ROBÓT OBEJMUJE

  • montaż taśmy akustycznej pod profilami przyściennymi,
  • montaż atestowanej folii paroizolacyjnej o grubości 0,2 mm,
  • montaż płyt gipsowo-kartonowych sufitu płaskiego,
  • ocieplenie sufitu izolacją o grubości 30 cm,
  • zbrojenie łączeń płyt i jednokrotne wypełnienie bruzd (bez szlifowania).

ZAKRES ROBÓT NIE OBEJMUJE

  • obróbki okien,
  • szpachlowania bruzd.

ZALETY ROZWIĄZANIA

  • dobra izolacja termiczna i akustyczna, poprawiająca komfort w pomieszczeniach,
  • szybki i czysty montaż dzięki technologii suchej,
  • estetyczne, gładkie wykończenie sufitu przygotowane pod dalsze prace wykończeniowe,
  • możliwość łatwego prowadzenia instalacji pod sufitem (oświetlenie, przewody).

9. OKNA I DRZWI

W ramach stanu deweloperskiego wykonywany jest montaż stolarki otworowej, zapewniający szczelność, izolację termiczną oraz estetyczne wykończenie budynku. Zastosowane okna i drzwi spełniają nowoczesne standardy energooszczędności i komfortu użytkowania.

ZAKRES ROBÓT OBEJMUJE

  • dostarczenie i montaż stolarki okiennej oraz drzwi tarasowych/balkonowych (drzwi rozwieralno-uchylne) przy użyciu kotew i pianki montażowej,
  • stolarka okienna w jednostronnym, podstawowym kolorze zewnętrznym,
  • okna 3-szybowe, 7-komorowe, zapewniające dobrą izolację termiczną i akustyczną,
  • dostarczenie i montaż drzwi wejściowych wybranych przez inwestora w cenie do 4000 zł brutto.

ZAKRES ROBÓT NIE OBEJMUJE

  • szklenia trapezowego,
  • systemów przesuwno-uchylnych typu PSK i HST.

ZALETY ZASTOSOWANEGO ROZWIĄZANIA

  • wysoka izolacja termiczna i akustyczna dzięki oknom 3-szybowym i 7-komorowym,
  • szczelny montaż zapewniający brak mostków termicznych,
  • estetyczny wygląd elewacji dzięki jednolitemu kolorowi stolarki,
  • funkcjonalne drzwi tarasowe zapewniające komfort użytkowania i swobodny dostęp do ogrodu lub balkonu,
  • możliwość wyboru drzwi wejściowych przez inwestora w ramach przewidzianego budżetu.

Chcesz porozmawiać o budowie Twojego domu?

Umów się na bezpłatną konsultacje z naszym specjalistą!

Seraphinite AcceleratorOptimized by Seraphinite Accelerator
Turns on site high speed to be attractive for people and search engines.